
Appartamento ristrutturato con balconata e terrazza vivibile!
Casa in vendita a Savona, La Rusca
Rif. F14-581
superficie115 m2
piano 1 / 2
camere2
bagni2
Appartamento ristrutturato con balconata e terrazza vivibile!
Proprietà in vendita a: Savona, La Rusca
288.000,00 115 mq
RIF. F14-581
Appartamento ristrutturato con balconata e terrazza vivibile!
Proprietà in vendita a: Savona, La Rusca
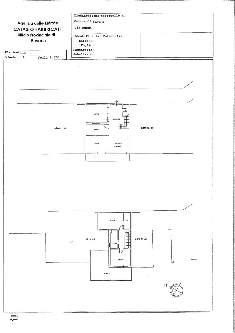
Savona - Nel quartiere residenziale de La Rusca proponiamo in vendita appartamento unico nel suo genere terrazza vivibile angolare e cortile privato!
L'appartamento è totalmente ristrutturato e si dispone su due livelli. Al piano primo abbiamo uno spazioso ingresso, un moderno openspace con sala e cucina unite ed un doppio accesso ad una bella balconata vivibile, un ampio bagno con doppio lavabo e un comodo ripostiglio. Adiacente all'ingresso abbiamo il cortile privato.
Al secondo piano, collegato al piano sottostante tramite scala, abbiamo due ampie camere da letto di cui una con cabina armadi, un secondo bagno e soprattutto una spettacolare terrazza angolare vivibile ideale per pranzi o cena all'aperto. L'appartamento è luminosissimo, gode di un'ottima esposizione ed ha vista aperta sul verde. Il riscaldamento è autonomo ed è presente anche l'aria condizionata. Possibilità acquisto mobilio. Completano la proprietà un posto auto coperto e una cantina. Una soluzione ideale come prima casa, immersa nella tranquillità e allo stesso tempo ad un passo dal centro!
€ 288.000,00
Spese condominiali: € 70 mensili
Spese condominiali: € 70 mensili
terrazzo: -
cantina: 6m2
giardino: -
Bagni: 2
Certificazione in fase di realizzazione
AGENZIA DI SAVONA
phone 3341018966 / 019823833 email f.b.immobiliaresv@gmail.com location_on location_on 




